LEMBEEK BUSINESS PARK - Nieuwbouw magazijnen te koop
REF: M-0038
Noorderstraat 1, 1502 Lembecq
€ 234.000
- 130 - 312 m²
- 130 - 312 m²
Deze moderne KMO-units, variërend van 130 m² tot 360 m² (samenvoegbaar), maken deel uit van een nieuw bedrijvenpark. Strategisch gelegen ten zuiden van Brussel/Halle en ten noorden van Saintes/Tubize, met uitstekende bereikbaarheid via de E429 en de Ring van Brussel.
De casco magazijnen hebben een vrije hoogte van 6 meter en zijn gebouwd met een solide staalstructuur, betonnen wanden (3 m hoog) en geïsoleerde sandwichpanelen. Elke unit is toegankelijk via een automatische sectionale poort (4 m breed x 4 m hoog) met aparte toegangsdeur. Daarnaast zijn de magazijnen uitgerust met een duurzame polybetonvloer, een lichtstraat met rookluik, branddetectie en individuele aansluitingen voor water, elektriciteit (32 A) en data.
Elke unit beschikt over een regenwaterput van 5.000 L. De dakstructuur is geschikt voor zonnepanelen (15 kg/m²) en technische installaties (5 kg/m²).
Oplevering voorzien in juni 2025.
Ideaal voor opslag en productie – een uitstekende opportuniteit voor ondernemers die op zoek zijn naar een kwalitatieve en strategisch gelegen bedrijfsruimte.
verkoopprijzen excl. BTW, parkings en nutsen:
VERPLICHT
• 1 parking incl. wachtbuis: €7000/parking/excl. BTW
• aansluiting nutsvoorzieningen: €12500 excl. BTW
• branddetectie: €2800 excl. BTW
OPTIONEEL
• extra parking excl. wachtbuis: €6000/parking/excl. BTW
Meer info, aarzel niet ons te contacteren:
GSM: 0479 49 55 88
Mail: info@kupa.immo
De casco magazijnen hebben een vrije hoogte van 6 meter en zijn gebouwd met een solide staalstructuur, betonnen wanden (3 m hoog) en geïsoleerde sandwichpanelen. Elke unit is toegankelijk via een automatische sectionale poort (4 m breed x 4 m hoog) met aparte toegangsdeur. Daarnaast zijn de magazijnen uitgerust met een duurzame polybetonvloer, een lichtstraat met rookluik, branddetectie en individuele aansluitingen voor water, elektriciteit (32 A) en data.
Elke unit beschikt over een regenwaterput van 5.000 L. De dakstructuur is geschikt voor zonnepanelen (15 kg/m²) en technische installaties (5 kg/m²).
Oplevering voorzien in juni 2025.
Ideaal voor opslag en productie – een uitstekende opportuniteit voor ondernemers die op zoek zijn naar een kwalitatieve en strategisch gelegen bedrijfsruimte.
verkoopprijzen excl. BTW, parkings en nutsen:
VERPLICHT
• 1 parking incl. wachtbuis: €7000/parking/excl. BTW
• aansluiting nutsvoorzieningen: €12500 excl. BTW
• branddetectie: €2800 excl. BTW
OPTIONEEL
• extra parking excl. wachtbuis: €6000/parking/excl. BTW
Meer info, aarzel niet ons te contacteren:
GSM: 0479 49 55 88
Mail: info@kupa.immo

Gebouw A
Gebouw B
Gebouw D
Gebouw C

*VERKOCHT* Nieuwbouw magazijn U1 te LEMBEEK - Gebouw A
vendu
- 180 m²
- 180 m²
*VERKOCHT* Nieuwbouw magazijn U2 te LEMBEEK - Gebouw A
vendu
- 216 m²
- 216 m²
*VERKOCHT* Nieuwbouw magazijn U3 te LEMBEEK - Gebouw A
vendu
- 216 m²
- 216 m²
*VERKOCHT* Nieuwbouw magazijn U4 te LEMBEEK - Gebouw A
vendu
- 216 m²
- 216 m²
*VERKOCHT* Nieuwbouw magazijn U5 te LEMBEEK BUSINESS PARK
vendu
- 216 m²
- 216 m²

*VERKOCHT* Nieuwbouw magazijn U9 te LEMBEEK - Gebouw B
vendu
- 168 m²
- 168 m²
*VERKOCHT* Nieuwbouw magazijn U13 te LEMBEEK - Gebouw B
vendu
- 168 m²
- 168 m²

Nieuwbouw magazijn U31 te LEMBEEK BUSINESS PARK - Gebouw D
vendu
- 264 m²
- 264 m²
KMO Unit (U34) te LEMBEEK BUSINESS PARK - Gebouw D
vendu
- 360 m²
- 360 m²

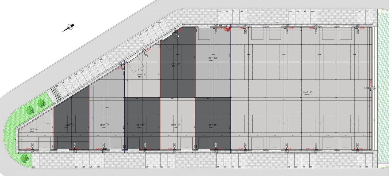
Nieuwbouw magazijn U14 te LEMBEEK BUSINESS PARK - Gebouw C
€ 234.000 hors TVA
- 130 m²
- 130 m²
Nieuwbouw magazijn U15 te LEMBEEK BUSINESS PARK - Gebouw C
€ 337.025 hors TVA
- 221 m²
- 221 m²
Nieuwbouw magazijn U16 te LEMBEEK BUSINESS PARK - Gebouw C
€ 436.800 hors TVA
- 312 m²
- 312 m²
Nieuwbouw magazijn U17 te LEMBEEK BUSINESS PARK - Gebouw C
En option
- 216 m²
- 216 m²
Nieuwbouw magazijn U18 te LEMBEEK BUSINESS PARK - Gebouw C
En option
- 216 m²
- 216 m²
Nieuwbouw magazijn U29 te LEMBEEK BUSINESS PARK - Gebouw C
vendu
- 270 m²
- 270 m²
Nieuwbouw magazijn U30 te LEMBEEK BUSINESS PARK - Gebouw C
vendu
- 186 m²
- 186 m²
Disponibilité
LEMBEEK BUSINESS PARK - Nieuwbouw magazijnen te koop |
|||||
---|---|---|---|---|---|
Rez-de-chaussez | |||||
Rez-de-chaussez | Surface | Parkings | Disp. | Prix | |
Unité pme - *VERKOCHT* Nieuwbouw magazijn U1 te LEMBEEK - Gebouw A | 180 m² | 1 | vendu | prix sur demande | |
Unité pme - *VERKOCHT* Nieuwbouw magazijn U2 te LEMBEEK - Gebouw A | 216 m² | 1 | vendu | prix sur demande | |
Unité pme - *VERKOCHT* Nieuwbouw magazijn U3 te LEMBEEK - Gebouw A | 216 m² | 1 | vendu | prix sur demande | |
Unité pme - *VERKOCHT* Nieuwbouw magazijn U4 te LEMBEEK - Gebouw A | 216 m² | 1 | vendu | prix sur demande | |
Unité pme - *VERKOCHT* Nieuwbouw magazijn U5 te LEMBEEK BUSINESS PARK | 216 m² | 1 | vendu | prix sur demande | |
Unité pme - *VERKOCHT* Nieuwbouw magazijn U9 te LEMBEEK - Gebouw B | 168 m² | 1 | vendu | prix sur demande | |
Unité pme - *VERKOCHT* Nieuwbouw magazijn U13 te LEMBEEK - Gebouw B | 168 m² | 1 | vendu | prix sur demande | |
Unité pme - Nieuwbouw magazijn U14 te LEMBEEK BUSINESS PARK - Gebouw C | 130 m² | 1 | à vendre | € 234.000 hors TVA | |
Unité pme - Nieuwbouw magazijn U15 te LEMBEEK BUSINESS PARK - Gebouw C | 221 m² | 1 | à vendre | € 337.025 hors TVA | |
Unité pme - Nieuwbouw magazijn U16 te LEMBEEK BUSINESS PARK - Gebouw C | 312 m² | 1 | à vendre | € 436.800 hors TVA | |
Unité pme - Nieuwbouw magazijn U17 te LEMBEEK BUSINESS PARK - Gebouw C | 216 m² | 1 | en option | € 329.400 hors TVA | |
Unité pme - Nieuwbouw magazijn U18 te LEMBEEK BUSINESS PARK - Gebouw C | 216 m² | 1 | en option | € 329.400 hors TVA | |
Unité pme - Nieuwbouw magazijn U29 te LEMBEEK BUSINESS PARK - Gebouw C | 270 m² | 1 | vendu | prix sur demande | |
Unité pme - Nieuwbouw magazijn U30 te LEMBEEK BUSINESS PARK - Gebouw C | 186 m² | 1 | vendu | prix sur demande | |
Unité pme - Nieuwbouw magazijn U31 te LEMBEEK BUSINESS PARK - Gebouw D | 264 m² | 2 | vendu | prix sur demande | |
Unité pme - KMO Unit (U34) te LEMBEEK BUSINESS PARK - Gebouw D | 360 m² | 1 | vendu | prix sur demande |