Magazijn te koop in Hooglede
REF: M-0025 UB01
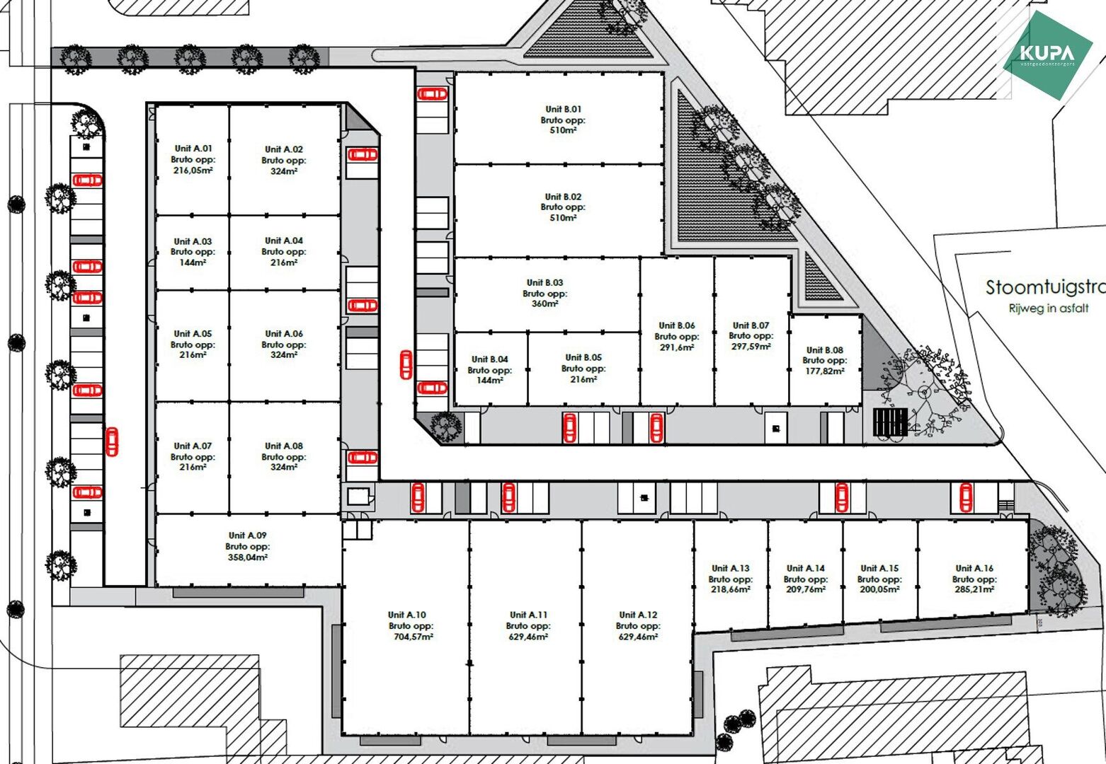
Bruggesteenweg 263/B01, 8830 Hooglede
€ 749.700 hors TVA
- 510 m²
- 510 m²
Het nieuwe bedrijvencentrum Steenpoort is strategisch gelegen in Hooglede (West-Vlaanderen), met een uitstekende zichtlocatie langs de N32 en vlotte verbinding naar de R32, in de bedrijvenzone “Stoomtuig Gits”. Het project omvat 24 kwalitatieve KMO-units met oppervlaktes van 324 m² tot 705 m², geschikt voor productie, opslag of combinatie met kantoor. Een bijkomende troef is de optimale bereikbaarheid: de site is toegankelijk via twee verschillende straten, waardoor u langs de ene zijde kan oprijden en langs de andere zijde opnieuw kan verlaten.
De units worden casco aangeboden (te koop of te huur), met mogelijkheid tot afwerking op maat. Elke unit beschikt over een vrije hoogte van ca. 6 meter, een sectionaalpoort (4,00 m x 4,50 m), een glazen inkomgedeelte en bijhorende parkeerplaatsen. De robuuste constructie en duurzame materialen, waaronder geïsoleerde sandwichpanelen en een groendak, garanderen comfort en kwaliteit.
Belangrijk: bijkomende kosten (niet limitatief) zijn o.a. onderhoudskosten via de VME, notariskosten en 21% btw op het aandeel grond en constructie.
Prijzen zijn exclusief:
• Parking: € 5.000/plaats
• Laadpaal: € 7.925/stuk
• Basisakte & opmeting: € 2.000
• Water & elektriciteit (incl. verlichting): € 3.800
• Brandtechnische voorzieningen: € 3.000
Contacteer ons voor een bezoek!
Tel: 0479 49 55 88
Mail: info@kupa.immo
Détails de la propriété
Finances
- Prix
- € 749.700 hors TVA
- Prix par m²
- € 1.470
- Disponibilité
- Immédiatement
- Dans le système de TVA
- oui
Confort
- Accessible aux fauteuils roulants
- non
- Alarme
- non
- Ascenseur
- non
- Porte blindée
- non
- Climatisation
- non
- Branchement d'égouts
- oui
- Connexion de gaz
- non
- Connexion d'eau
- oui
- Domotique
- non
- Central téléphonique
- non
- Réseau informatique
- non
Bâtiment
- Surface habitable
- 510,00 m²
- Construction
- 2 façades
- Année de construction
- 2025
- Bâtiment de destination
- Small and medium entreprise
- Structure
- Acier
- Surface brut
- 510,00 m²
- Surface constructible bâtiment principal
- 510,00 m²
- Orientation de la façade
- Est
- Revêtement de sol
- Béton poli
- Volets
- oui
- Porte sectionnelle
- 4,00m (l) × 4,50m (h)
- Hauteur libre
- 6 m
- Isolation
- oui, toit et murs
- Pont roulant
- non
- non
- Sortie de secours
- oui
Terrain
- Surface au sol
- 510,00 m²
- Jardin
- non
Information sur l'urbanisme
- Information urbaine
- oui
- Destination
- Zone industrielle pour les entreprises artisanales ou zones pour les petites et moyennes entreprises
- Permis de construire
- oui
- Permis de lotissement
- non
- Droit de préemption
- non
- Invocation
- Pas de correction juridique ou mesure administrative imposée
- Verdicts
- non
- P-score
- D
- Zone d'espace ouvert sensible à l'eau
- Non
- Patrimoine protégé
- non
- Mesures de gestion inscrites dans le registre des mesures
- non
Aménagement de l'espace
- Plan d'implantation
- oui
- Certificat de sol
- oui
Énergie
- Type de fenêtres
- Aluminium
- Double vitrage
- oui
- Inspection de l'électricité
- Oui, Conforme
- Chauffage
- Pas installé
- Panneaux solaires
- non,
Techniques
- Air comprimé
- non
- électricité
- oui
- Câblage téléphonique
- oui
- Central téléphonique
- non,
- éclairage intérieur
- oui
- éclairage extérieur
- oui
- Fosse septique
- oui
- Courant triphasé
- oui
Garages / parking
- Garages / parking
- non
Sécurité
- Contrôle d'accès
- non
- Aporte automatique
- non
- Surveillance
- non