Unité pme à vendre à Laarne
REF: M-0080 UC.2
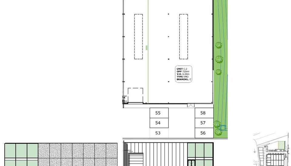
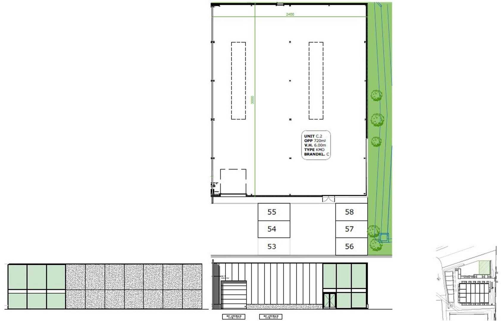
Leeweg 22/C.2, 9270 Laarne
€ 1.086.500 hors TVA
- 720 m²
- 720 m²
Het nieuw te bouwen bedrijvenpark STEEN in Laarne biedt 15 KMO-units te koop aan, met oppervlaktes van 128 m² tot 1810m². Units kunnen bovendien samengevoegd worden tot grotere bedrijfsruimtes, ideaal voor groeiende ondernemingen.
Het magazijn C2 heeft 6 parkeerplaatsen. Mezzanine is optioneel en te verkrijgen mits meerprijs.
Het KMO-park ligt centraal in de driehoek Gent – Wetteren – Destelbergen, waardoor het een strategische uitvalsbasis vormt voor bedrijven actief in de Vlaamse Ardennen, het Waasland en de ruime Gentse regio. Bereikbaarheid is een grote troef: de site bevindt zich op slechts 5 minuten van de R4, met een snelle aansluiting naar de E17 en E40 (Klaverblad).
De magazijnen worden opgebouwd in een duurzame staalstructuur met geïsoleerde beton- en sandwichpanelen. Elke unit beschikt over een vrije hoogte van 6 meter, lichtstraat met rookluik, automatische sectionale poort, een afzonderlijke inkomdeur, individuele nutsvoorzieningen en 2 privatieve parkeerplaatsen zijn inbegrepen in de prijs.
bouwvergunning in aanvraag, oplevering normaal voorzien in Q4 2026 .
Meer info, aarzel niet ons te contacteren:
GSM: 0479 49 55 88
Mail: info@kupa.immo
Détails de la propriété
Finances
- Prix
- € 1.086.500 hors TVA
- Prix par m²
- € 1.509
- Disponibilité
- A la livraison
01 décembre 2026 - Dans le système de TVA
- oui
Localisation géographique
- Localisation géographique
- Industriel
Confort
- Accessible aux fauteuils roulants
- non
- Ascenseur
- non
- Climatisation
- oui
- Branchement d'égouts
- oui
- Connexion d'eau
- oui
Bâtiment
- Surface habitable
- 720,00 m²
- Construction
- 2 façades
- Année de construction
- 2026
- Surface brut
- 720,00 m²
- Surface constructible bâtiment principal
- 720,00 m²
- Largeur de façade
- 24,00 m
- Type de toit
- Toit plat
- Orientation de la façade
- Sud
- Revêtement de sol
- Béton poli
- Volets
- oui
- Porte sectionnelle
- 4,00m (l) × 4,20m (h)
- Hauteur libre
- 6 m
- Isolation
- oui
- Sortie de secours
- oui
Terrain
- Surface au sol
- 720,00 m²
- Jardin
- non
Information sur l'urbanisme
- Information urbaine
- oui
- Destination
- Zone industrielle
- Permis de construire
- non
- Permis de lotissement
- non
- Droit de préemption
- non
- Invocation
- Pas de correction juridique ou mesure administrative imposée
- P-score
- A
- Patrimoine protégé
- oui
Aménagement de l'espace
- Section du cadastre
- B
- Numéro de cadastre
- 1044n
- Plan d'implantation
- oui
Énergie
- Type de fenêtres
- Aluminium
- Double vitrage
- oui
- Inspection de l'électricité
- Oui, Conforme
- Chauffage
- Pas installé
Techniques
- électricité
- oui
- Câblage téléphonique
- oui
- éclairage extérieur
- non
- étage de capacité
- 1 T/m²
- Courant triphasé
- oui
Garages / parking
- Garages / parking
- non
- Parking extérieur
- oui
- Parking de l'équipe
- non
Aménagement
- Cuisine
- oui