Kmo-units te koop in bedrijvencentrum Steenpoort te Hooglede
REF: M-0025
Bruggesteenweg 263, 8830 Hooglede
vanaf € 482.760
- 324 - 1.334 m²
- 324 - 705 m²
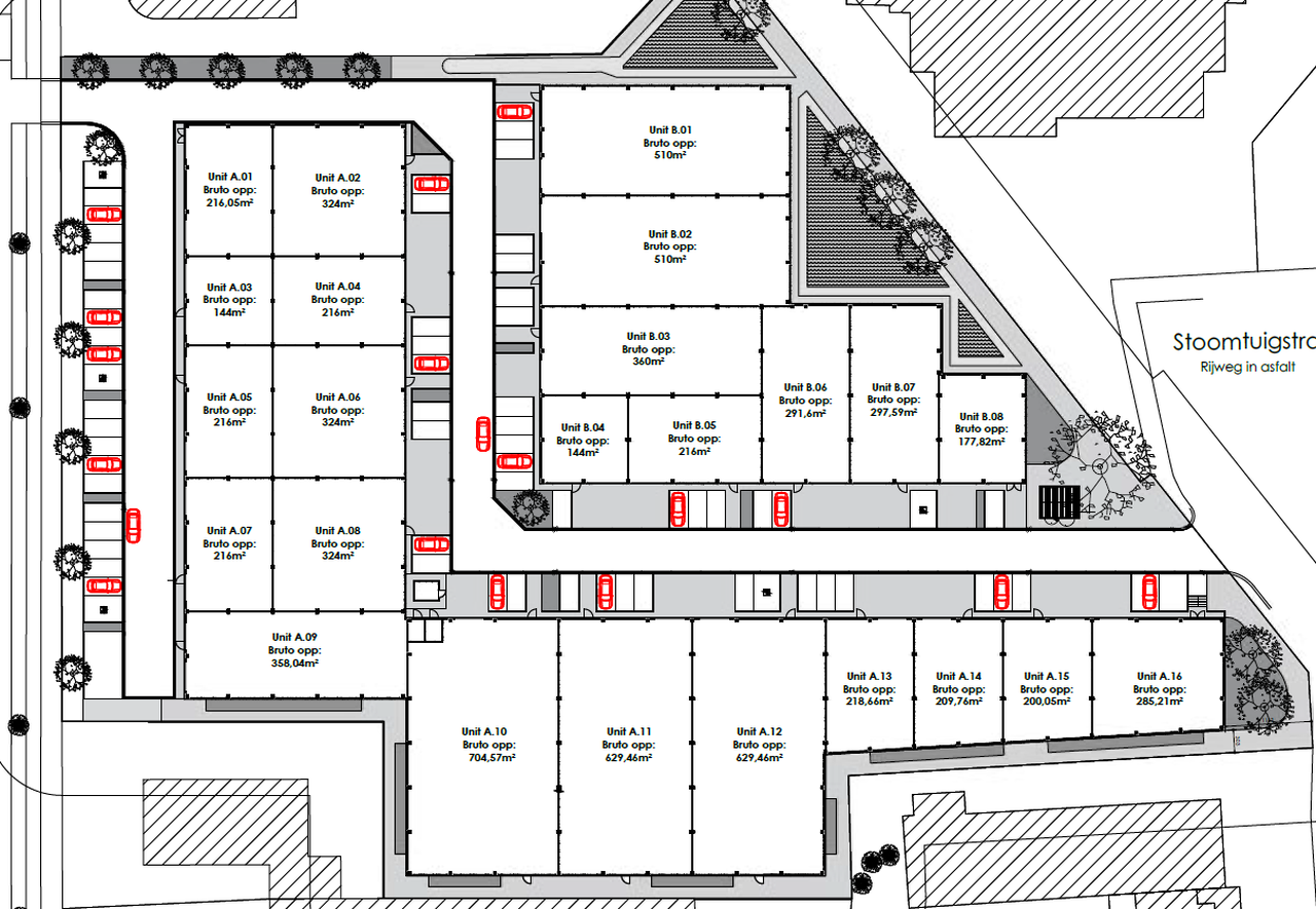
Het nieuwe bedrijvencentrum Steenpoort is strategisch gelegen in Hooglede (West-Vlaanderen), met een uitstekende zichtlocatie langs de N32 en vlotte verbinding naar de R32, in de bedrijvenzone “Stoomtuig Gits”. Het project omvat 24 kwalitatieve KMO-units met oppervlaktes van 324 m² tot 705 m², geschikt voor productie, opslag of combinatie met kantoor. Een bijkomende troef is de optimale bereikbaarheid: de site is toegankelijk via twee verschillende straten, waardoor u langs de ene zijde kan oprijden en langs de andere zijde opnieuw kan verlaten.
De units worden casco aangeboden (te koop of te huur), met mogelijkheid tot afwerking op maat. Elke unit beschikt over een vrije hoogte van ca. 6 meter, een sectionaalpoort (4,00 m x 4,50 m), een glazen inkomgedeelte en bijhorende parkeerplaatsen. De robuuste constructie (vloerbelasting 3.000 kg/m²) en duurzame materialen, waaronder geïsoleerde sandwichpanelen en een groendak, garanderen comfort en kwaliteit.
Belangrijk: bijkomende kosten (niet limitatief) zijn o.a. onderhoudskosten via de VME, notariskosten en 21% btw op het aandeel grond en constructie.
Prijzen zijn exclusief:
• Parking: € 5.000/plaats
• Laadpaal: € 7.925/stuk
• Basisakte & opmeting: € 2.000
• Water & elektriciteit (incl. verlichting): € 3.800
• Brandtechnische voorzieningen: € 3.000
Contacteer ons voor een bezoek!
Tel: 0479 49 55 88
Mail: info@kupa.immo
De units worden casco aangeboden (te koop of te huur), met mogelijkheid tot afwerking op maat. Elke unit beschikt over een vrije hoogte van ca. 6 meter, een sectionaalpoort (4,00 m x 4,50 m), een glazen inkomgedeelte en bijhorende parkeerplaatsen. De robuuste constructie (vloerbelasting 3.000 kg/m²) en duurzame materialen, waaronder geïsoleerde sandwichpanelen en een groendak, garanderen comfort en kwaliteit.
Belangrijk: bijkomende kosten (niet limitatief) zijn o.a. onderhoudskosten via de VME, notariskosten en 21% btw op het aandeel grond en constructie.
Prijzen zijn exclusief:
• Parking: € 5.000/plaats
• Laadpaal: € 7.925/stuk
• Basisakte & opmeting: € 2.000
• Water & elektriciteit (incl. verlichting): € 3.800
• Brandtechnische voorzieningen: € 3.000
Contacteer ons voor een bezoek!
Tel: 0479 49 55 88
Mail: info@kupa.immo
Gebouw A
Gebouw B
Magazijn UA02 te koop in Hooglede
€ 482.760 excl. BTW
- 324 m²
- 324 m²
Magazijn UA10 te koop in Hooglede
€ 1.035.718 excl. BTW
- 705 m²
- 705 m²
Magazijn UA11 te koop in Hooglede
€ 925.365 excl. BTW
- 629 m²
- 629 m²
Magazijn UA12 te koop in Hooglede
€ 925.365 excl. BTW
- 629 m²
- 629 m²
Magazijn UB01 te koop in Hooglede
€ 749.700 excl. BTW
- 510 m²
- 510 m²
Magazijn UB02 te koop in Hooglede
€ 749.700 excl. BTW
- 510 m²
- 510 m²
Magazijn UB03 te koop in Hooglede
€ 536.400 excl. BTW
- 360 m²
- 360 m²
Beschikbaarheid
Bedrijvencentrum Steenpoort Hooglede |
|||||
|---|---|---|---|---|---|
| Gelijkvloers | |||||
| Gelijkvloers | Opp. | Parkings | Status | Prijs | |
| Kmo-unit - Magazijn UA02 te koop in Hooglede | 324 m² | — | te koop | € 482.760 excl. BTW | |
| Kmo-unit - Magazijn UA10 te koop in Hooglede | 705 m² | — | te koop | € 1.035.718 excl. BTW | |
| Kmo-unit - Magazijn UA11 te koop in Hooglede | 629 m² | — | te koop | € 925.365 excl. BTW | |
| Kmo-unit - Magazijn UA12 te koop in Hooglede | 629 m² | — | te koop | € 925.365 excl. BTW | |
| Kmo-unit - Magazijn UB01 te koop in Hooglede | 510 m² | — | te koop | € 749.700 excl. BTW | |
| Kmo-unit - Magazijn UB02 te koop in Hooglede | 510 m² | — | te koop | € 749.700 excl. BTW | |
| Kmo-unit - Magazijn UB03 te koop in Hooglede | 360 m² | — | te koop | € 536.400 excl. BTW | |
| Kmo-unit - Magazijn UA10+A11 te koop in Hooglede | 1334 m² | — | te koop | € 1.961.083 excl. BTW | |