Nieuwbouw magazijn te huur op toplocatie in Kontich
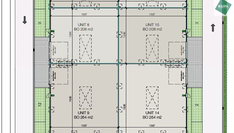
REF: M-0001 (Unit 15)
Heiveldekens 1A/0004, 2550 Kontich
€ 1.473 p/m
- 208 m²
- 208 m²
208m² loods met 1 parkeerplaats te huur in Kontich, gelegen in bedrijvenpark Heiveldekens, binnen de gouden driehoek (Antwerpen, Brussel en Gent).
Vlotte bereikbaarheid, dichtbij de E19 en met een goede ontsluiting via de A12 en de R0 (ring rond Brussel).
Deze nieuwbouw loods is opgebouwd uit een staalstructuur, betonplint en geïsoleerde sandwichpanelen, met tussenwanden van 14 cm beton, een geïsoleerd steeldeck, polybetonvloer (2T/m²), aluminium buitenschrijnwerk, sectionale poort (4m x 4m), RWA, buitenverlichting en branddetectie.
Het magazijn is EPB-conform en worden verder voorzien van enkele stopcontacten en binnenverlichting.
Bent u op zoek naar een opslag- of atelierruimte op een goede locatie?
Prijs is excl. btw, gemeenschappelijke en privatieve kosten, OV en verzekering.
Aarzel niet om ons te contacteren: 0479 49 55 88 of joost@kupa.immo
Vlotte bereikbaarheid, dichtbij de E19 en met een goede ontsluiting via de A12 en de R0 (ring rond Brussel).
Deze nieuwbouw loods is opgebouwd uit een staalstructuur, betonplint en geïsoleerde sandwichpanelen, met tussenwanden van 14 cm beton, een geïsoleerd steeldeck, polybetonvloer (2T/m²), aluminium buitenschrijnwerk, sectionale poort (4m x 4m), RWA, buitenverlichting en branddetectie.
Het magazijn is EPB-conform en worden verder voorzien van enkele stopcontacten en binnenverlichting.
Bent u op zoek naar een opslag- of atelierruimte op een goede locatie?
Prijs is excl. btw, gemeenschappelijke en privatieve kosten, OV en verzekering.
Aarzel niet om ons te contacteren: 0479 49 55 88 of joost@kupa.immo
Details van het pand
Financieel
- Prijs
- € 1.473 p/m
- Prijs per m² per jaar
- € 85
- Beschikbaarheid
- Bij oplevering
01 januari 2026 - Kosten
- € 75 p/m
gemeenschappelijke kosten - Bankwaarborg - aantal maanden
- 3
Ligging
- Ligging
- Industrieel
Comfort
- Rolstoeltoegankelijk
- nee
- Lift
- nee
- Aansluiting riolering
- ja
- Aansluiting water
- ja
- Computernetwerk
- ja
Gebouw
- Bewoonbare opp.
- 208,00 m²
- Constructie
- Gesloten
- Bouwjaar
- 2025
- Bestemming gebouw
- KMO
- Bebouwbare opp. hoofdgebouw
- 208,00 m²
- Gevelbreedte
- 12,86 m
- Type dak
- Platdak
- Vloerbedekking
- Gepolieerde beton
- Rookluiken
- ja, RWA
Terrein
- Perceel opp.
- 208,00 m²
- Tuin
- nee
Stedenbouwkundige informatie
- Bestemming
- Industriegebied voor ambachtelijke bedrijven of gebieden voor kleine en middelgrote ondernemingen
- Bouwvergunning
- ja
- Verkavelingsvergunning
- nee
- Dagvaarding
- Geen rechterlijke herstelmaatregel of bestuurlijke maatregel opgelegd
Ruimtelijke ordening
- Bodemattest
- ja
Energie
- Type schrijnwerk
- Aluminium
- Dubbel glas
- ja
- Elektriciteitskeuring
- Ja, Conform
- Verwarming
- Niet geïnstalleerd
Technieken
- Elektriciteit
- ja, 380V
- Telefoonbekabeling
- ja
- Septische put
- ja
Garages / parking
- Garages / parking
- nee
- Binnenparking
- nee
- Buitenparking
- ja