Magazijn te koop te Herzele Business Park
REF: M-0054 (Unit A09)
Hoogstraat 162/C (A09), 9550 Herzele
€ 401.200 excl. BTW
- 236 m²
- 236 m²
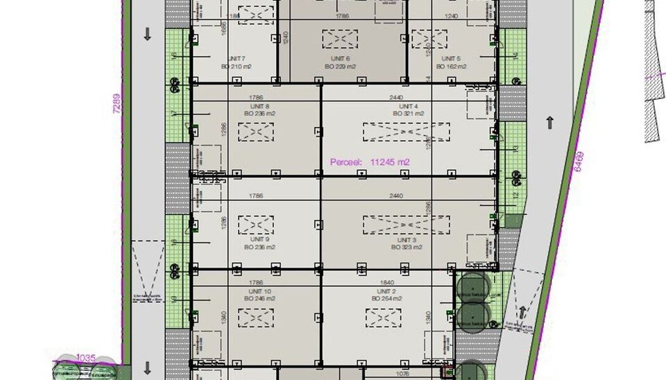
Nieuwbouw magazijn te koop vanaf 186m² tot 323m² in bedrijvenpark te Herzele.
Deze KMO-unit is strategisch gelegen langs de Hoogstraat in Herzele, een vlot bereikbare locatie voor zowel lokale ondernemers als bedrijven die actief zijn in de ruimere regio. De site ligt op korte afstand van het centrum van Herzele én op slechts enkele minuten rijden van Zottegem, wat een snelle verbinding biedt naar een belangrijk economisch knooppunt in Zuid-Oost-Vlaanderen.
Dankzij de directe aansluiting op de N42 geniet je een uitstekende ontsluiting richting Aalst, Geraardsbergen en de E40.
De magazijnen zijn als volgt opgebouwd: een vrije hoogte van 6 meter, met een solide staalstructuur, betonnen wanden en geïsoleerde sandwichpanelen. Er is een automatische sectionale poort (4m x 4m) met aparte toegangsdeur. Daarnaast zijn de loodsen uitgerust met een duurzame polybetonvloer, een lichtstraat met rookluik, branddetectie en individuele aansluitingen voor water, elektriciteit en data.
Oplevering: Q1 2026
Ideaal voor opslag en productie – een uitstekende opportuniteit voor ondernemers die op zoek zijn naar een kwalitatieve en strategisch gelegen bedrijfsruimte.
verkoopprijzen excl. BTW, parkings en nutsen:
VERPLICHT
• 1 parking incl. wachtbuis: €6000/parking/excl. BTW (6m) of €7000/parking/excl.BTW (8m)
• aansluiting nutsvoorzieningen: €12500 excl. BTW
• branddetectie: €3500 excl. BTW
OPTIONEEL
• extra parking personenwagen (6m) : €5000/parking excl. BTW
• extra parking bestelwagen (8m): €6000/parking excl. BTW
• laadpaal: €3500 excl. BTW
Meer info, aarzel niet ons te contacteren:
GSM: 0479 49 55 88
Mail: info@kupa.immo
Details van het pand
Financieel
- Prijs
- € 401.200 excl. BTW
- Prijs per m²
- € 1.700
- Beschikbaarheid
- Bij oplevering
30 maart 2026 - Onder BTW stelsel
- ja
Ligging
- Ligging
- Industrieel
Comfort
- Rolstoeltoegankelijk
- nee
- Lift
- nee
- Aansluiting riolering
- nee
- Aansluiting water
- ja
Gebouw
- Bewoonbare opp.
- 236,00 m²
- Bouwjaar
- 2025
- Bestemming gebouw
- KMO
- Structuur
- Staal
- Bruto opp.
- 236,00 m²
- Bebouwbare opp. hoofdgebouw
- 236,00 m²
- Gevelbreedte
- 12,88 m
- Type dak
- geïsoleerd steeldeck
- Oriëntatie voorgevel
- West
- Vloerbedekking
- Gepolieerde beton
- Rookluiken
- ja, RWA
- Sectionale poort
- 4,00m (b) × 4,00m (h)
- Vrije hoogte
- 6 m
- Nooduitgang
- ja
Terrein
- Perceel opp.
- 236,00 m²
- Tuin
- nee
Stedenbouwkundige informatie
- Stedenbouwkundige info
- ja
- Bestemming
- Industriegebied voor ambachtelijke bedrijven of gebieden voor kleine en middelgrote ondernemingen
- Bouwvergunning
- ja
- Verkavelingsvergunning
- nee
- Voorkooprecht
- nee
- Dagvaarding
- Geen rechterlijke herstelmaatregel of bestuurlijke maatregel opgelegd
- Vonnissen
- nee
- G-score
- A
- P-score
- B
Ruimtelijke ordening
- Kadaster sectie
- B
- Kadaster nummer
- 1225/F
- Kadaster afdeling
- HERZELE 1 AFD/ HEREZELE
- Bodemattest
- ja
Energie
- Type schrijnwerk
- Aluminium
- Dubbel glas
- ja
- Elektriciteitskeuring
- Nee
- Verwarming
- Niet geïnstalleerd
Technieken
- Elektriciteit
- ja
- Telefoonbekabeling
- ja
- Septische put
- ja
- Draagkracht vloer
- 1.5 T/m²
- Drijfkracht
- ja
Garages / parking
- Garages / parking
- nee
- Buitenparking
- ja
- Vrachtwagenparking
- nee
- Oplaadpunten
- wachtbuis voorzien