Nieuwbouw magazijn te koop in LEMBEEK BUSINESS PARK
REF: M-0038 U1000
Noorderstraat 1, 1500 Hal
€ 1.450.000 hors TVA
- 1.000 m²
- 1.000 m²
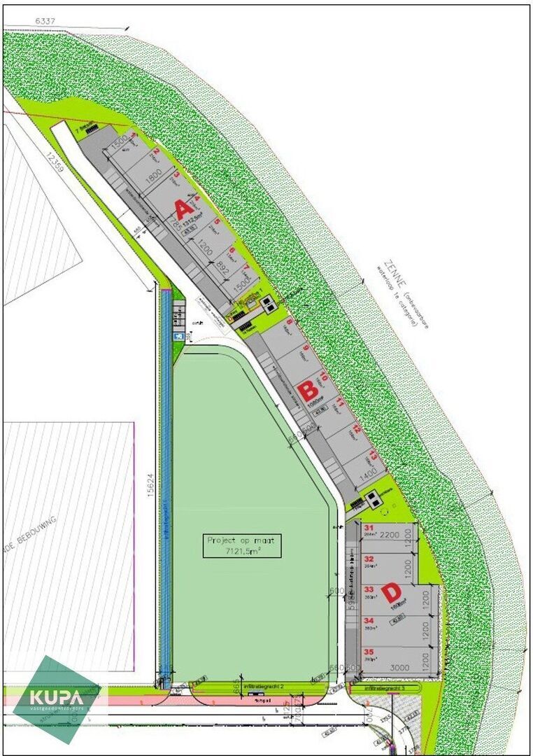
Ces unités modernes pour PME, d'une superficie allant de 130 m² à 312 m² (modulables), font partie d'un nouveau parc d'activités. Elles sont stratégiquement situées au sud de Bruxelles/Hal et au nord de Saintes/Tubize, avec un excellent accès via la E429 et le Ring de Bruxelles.
Les entrepôts bruts ont une hauteur libre de 6 mètres et sont construits avec une structure en acier solide, des murs en béton (3 m de haut) et des panneaux sandwich isolés. Chaque unité est accessible par une porte sectionnelle automatique (4 m de large x 4 m de haut) avec une porte d'accès séparée. En outre, les entrepôts sont équipés d'un sol en polybeton durable, d'une verrière avec trappe d'évacuation de fumée, d'un système de détection d'incendie et de raccordements individuels pour l'eau, l'électricité (32 A) et les données.
Chaque unité dispose d'un réservoir d'eau de pluie de 5 000 litres.
Livraison prévue en septembre 2026.
Idéal pour le stockage et la production – une excellente opportunité pour les entrepreneurs à la recherche d'un espace commercial de qualité et stratégiquement situé.
Prix de vente hors TVA, parkings et charges :
OBLIGATOIRE
• 1 parking avec tube d'attente : 7 000 € / parking / hors TVA
• Raccordement aux charges : 12 500 € hors TVA
• Détection incendie : 2 800 € hors TVA
FACULTATIF
• Parking supplémentaire hors tube d'attente : 6 000 € / parking / hors TVA
Pour plus d'informations, n'hésitez pas à nous contacter :
GSM : 0479 49 55 88
E-mail : info@kupa.immo
Détails de la propriété
Finances
- Prix
- € 1.450.000 hors TVA
- Prix par m²
- € 1.450
- Disponibilité
- A la livraison
01 septembre 2026 - Dans le système de TVA
- oui
Localisation géographique
- Localisation géographique
- Industriel
Confort
- Accessible aux fauteuils roulants
- non
- Ascenseur
- non
- Connexion d'eau
- oui
Bâtiment
- Surface habitable
- 1.000,00 m²
- Construction
- 3 façades
- Année de construction
- 2026
- Bâtiment de destination
- Small and medium entreprise
- Structure
- Acier
- Surface constructible bâtiment principal
- 1.000,00 m²
- Type de toit
- Toit plat
- Orientation de la façade
- Ouest
- Revêtement de sol
- Béton poli
- Volets
- oui
- Porte sectionnelle
- 4,00m (l) × 4,00m (h)
- Hauteur libre
- 6 m
- Isolation
- oui, toit et murs
Terrain
- Surface au sol
- 1.000,00 m²
- Jardin
- non
Information sur l'urbanisme
- Information urbaine
- oui
- Destination
- Zone industrielle
- Permis de construire
- oui
- Permis de lotissement
- non
- Droit de préemption
- non
- Invocation
- Pas de correction juridique ou mesure administrative imposée
- Verdicts
- non
- P-score
- D
Aménagement de l'espace
- Section du cadastre
- E
- Numéro de cadastre
- 0194/C
- Département du cadastre
- 1ste AFD HALLE
- Plan d'implantation
- oui
- Certificat de sol
- oui
Énergie
- Type de fenêtres
- Aluminium
- Double vitrage
- oui
- Inspection de l'électricité
- Non
- Chauffage
- Pas installé
Techniques
- électricité
- oui, 380V
- Câblage téléphonique
- oui
- Fosse septique
- oui
- Courant triphasé
- oui
Garages / parking
- Garages / parking
- non
- Parking extérieur
- oui
- Parking de l'équipe
- non