Nieuwbouw magazijn te koop in LEMBEEK BUSINESS PARK
REF: M-0038 U14
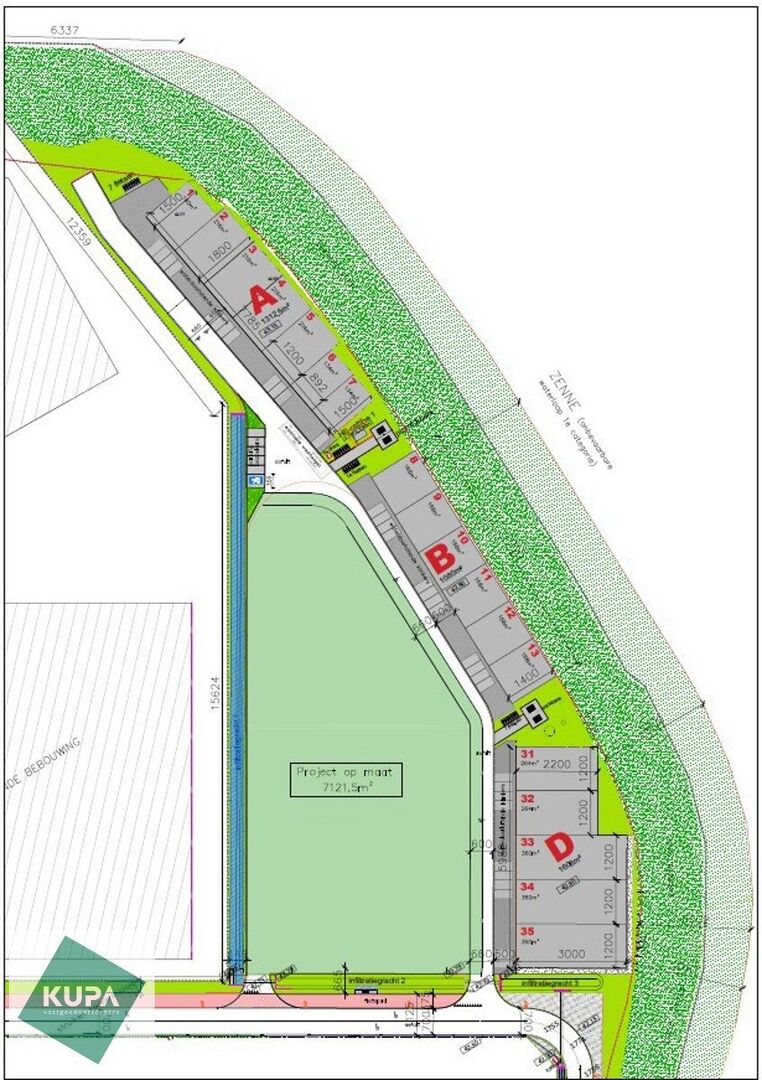
Noorderstraat 1, 1500 Halle
€ 234.000 excl. BTW
- 130 m²
- 130 m²
Deze moderne KMO-units, variërend van 130 m² tot 312 m² (samenvoegbaar), maken deel uit van een nieuw bedrijvenpark. Strategisch gelegen ten zuiden van Brussel/Halle en ten noorden van Saintes/Tubize, met uitstekende bereikbaarheid via de E429 en de Ring van Brussel.
De casco magazijnen hebben een vrije hoogte van 6 meter en zijn gebouwd met een solide staalstructuur, betonnen wanden (3 m hoog) en geïsoleerde sandwichpanelen. Elke unit is toegankelijk via een automatische sectionale poort (4 m breed x 4 m hoog) met aparte toegangsdeur. Daarnaast zijn de magazijnen uitgerust met een duurzame polybetonvloer, een lichtstraat met rookluik, branddetectie en individuele aansluitingen voor water, elektriciteit (32 A) en data.
Elke unit beschikt over een regenwaterput van 5.000 L. De dakstructuur is geschikt voor zonnepanelen (15 kg/m²) en technische installaties (5 kg/m²).
Oplevering voorzien in september 2026.
Ideaal voor opslag en productie – een uitstekende opportuniteit voor ondernemers die op zoek zijn naar een kwalitatieve en strategisch gelegen bedrijfsruimte.
verkoopprijzen excl. BTW, parkings en nutsen:
VERPLICHT
• 1 parking incl. wachtbuis: €7000/parking/excl. BTW
• aansluiting nutsvoorzieningen: €12500 excl. BTW
• branddetectie: €2800 excl. BTW
OPTIONEEL
• extra parking excl. wachtbuis: €6000/parking/excl. BTW
Meer info, aarzel niet ons te contacteren:
GSM: 0479 49 55 88
Mail: info@kupa.immo
De casco magazijnen hebben een vrije hoogte van 6 meter en zijn gebouwd met een solide staalstructuur, betonnen wanden (3 m hoog) en geïsoleerde sandwichpanelen. Elke unit is toegankelijk via een automatische sectionale poort (4 m breed x 4 m hoog) met aparte toegangsdeur. Daarnaast zijn de magazijnen uitgerust met een duurzame polybetonvloer, een lichtstraat met rookluik, branddetectie en individuele aansluitingen voor water, elektriciteit (32 A) en data.
Elke unit beschikt over een regenwaterput van 5.000 L. De dakstructuur is geschikt voor zonnepanelen (15 kg/m²) en technische installaties (5 kg/m²).
Oplevering voorzien in september 2026.
Ideaal voor opslag en productie – een uitstekende opportuniteit voor ondernemers die op zoek zijn naar een kwalitatieve en strategisch gelegen bedrijfsruimte.
verkoopprijzen excl. BTW, parkings en nutsen:
VERPLICHT
• 1 parking incl. wachtbuis: €7000/parking/excl. BTW
• aansluiting nutsvoorzieningen: €12500 excl. BTW
• branddetectie: €2800 excl. BTW
OPTIONEEL
• extra parking excl. wachtbuis: €6000/parking/excl. BTW
Meer info, aarzel niet ons te contacteren:
GSM: 0479 49 55 88
Mail: info@kupa.immo
Details van het pand
Financieel
- Prijs
- € 234.000 excl. BTW
- Prijs per m²
- € 1.800
- Beschikbaarheid
- Bij oplevering
01 september 2026 - Onder BTW stelsel
- ja
Ligging
- Ligging
- Industrieel
Comfort
- Rolstoeltoegankelijk
- nee
- Lift
- nee
- Aansluiting water
- ja
Gebouw
- Bewoonbare opp.
- 130,00 m²
- Constructie
- Halfopen
- Bouwjaar
- 2026
- Bestemming gebouw
- KMO
- Structuur
- Staal
- Netto opp.
- 130,00 m²
- Bebouwbare opp. hoofdgebouw
- 130,00 m²
- Gevelbreedte
- 12,00 m
- Type dak
- Platdak
- Oriëntatie voorgevel
- West
- Vloerbedekking
- Gepolieerde beton
- Rookluiken
- ja, RWA
- Sectionale poort
- 4,00m (b) × 4,00m (h)
- Vrije hoogte
- 6 m
- Isolatie
- ja, dak en muren
Terrein
- Perceel opp.
- 130,00 m²
- Tuin
- nee
Stedenbouwkundige informatie
- Stedenbouwkundige info
- ja
- Bestemming
- Industriegebied
- Bouwvergunning
- ja
- Verkavelingsvergunning
- nee
- Voorkooprecht
- nee
- Dagvaarding
- Geen rechterlijke herstelmaatregel of bestuurlijke maatregel opgelegd
- Vonnissen
- nee
- P-score
- D
Ruimtelijke ordening
- Kadaster sectie
- E
- Kadaster nummer
- 0194/C
- Kadaster afdeling
- 1ste AFD HALLE
- Inplantingsplan
- ja
- Bodemattest
- ja
Energie
- Type schrijnwerk
- Aluminium
- Dubbel glas
- ja
- Elektriciteitskeuring
- Nee
- Verwarming
- Niet geïnstalleerd
Technieken
- Elektriciteit
- ja, 380V
- Telefoonbekabeling
- ja
- Septische put
- ja, IBA
- Drijfkracht
- ja
Garages / parking
- Garages / parking
- nee
- Buitenparking
- ja
- Vrachtwagenparking
- nee
- Oplaadpunten
- mogelijk