Nieuwbouw magazijn te koop in LEMBEEK BUSINESS PARK
REF: M-0038 U14
Noorderstraat 1, 1500 Hal
€ 234.000 hors TVA
- 130 m²
- 130 m²
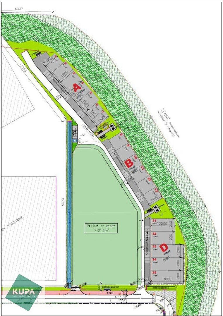
Deze moderne KMO-units, variërend van 130 m² tot 312 m² (samenvoegbaar), maken deel uit van een nieuw bedrijvenpark. Strategisch gelegen ten zuiden van Brussel/Halle en ten noorden van Saintes/Tubize, met uitstekende bereikbaarheid via de E429 en de Ring van Brussel.
De casco magazijnen hebben een vrije hoogte van 6 meter en zijn gebouwd met een solide staalstructuur, betonnen wanden (3 m hoog) en geïsoleerde sandwichpanelen. Elke unit is toegankelijk via een automatische sectionale poort (4 m breed x 4 m hoog) met aparte toegangsdeur. Daarnaast zijn de magazijnen uitgerust met een duurzame polybetonvloer, een lichtstraat met rookluik, branddetectie en individuele aansluitingen voor water, elektriciteit (32 A) en data.
Elke unit beschikt over een regenwaterput van 5.000 L. De dakstructuur is geschikt voor zonnepanelen (15 kg/m²) en technische installaties (5 kg/m²).
Oplevering voorzien in september 2026.
Ideaal voor opslag en productie – een uitstekende opportuniteit voor ondernemers die op zoek zijn naar een kwalitatieve en strategisch gelegen bedrijfsruimte.
verkoopprijzen excl. BTW, parkings en nutsen:
VERPLICHT
• 1 parking incl. wachtbuis: €7000/parking/excl. BTW
• aansluiting nutsvoorzieningen: €12500 excl. BTW
• branddetectie: €2800 excl. BTW
OPTIONEEL
• extra parking excl. wachtbuis: €6000/parking/excl. BTW
Meer info, aarzel niet ons te contacteren:
GSM: 0479 49 55 88
Mail: info@kupa.immo
Détails de la propriété
Finances
- Prix
- € 234.000 hors TVA
- Prix par m²
- € 1.800
- Disponibilité
- A la livraison
01 septembre 2026 - Dans le système de TVA
- oui
Localisation géographique
- Localisation géographique
- Industriel
Confort
- Accessible aux fauteuils roulants
- non
- Ascenseur
- non
- Connexion d'eau
- oui
Bâtiment
- Surface habitable
- 130,00 m²
- Construction
- 3 façades
- Année de construction
- 2026
- Bâtiment de destination
- Small and medium entreprise
- Structure
- Acier
- Surface nette
- 130,00 m²
- Surface constructible bâtiment principal
- 130,00 m²
- Largeur de façade
- 12,00 m
- Type de toit
- Toit plat
- Orientation de la façade
- Ouest
- Revêtement de sol
- Béton poli
- Volets
- oui
- Porte sectionnelle
- 4,00m (l) × 4,00m (h)
- Hauteur libre
- 6 m
- Isolation
- oui, toit et murs
Terrain
- Surface au sol
- 130,00 m²
- Jardin
- non
Information sur l'urbanisme
- Information urbaine
- oui
- Destination
- Zone industrielle
- Permis de construire
- oui
- Permis de lotissement
- non
- Droit de préemption
- non
- Invocation
- Pas de correction juridique ou mesure administrative imposée
- Verdicts
- non
- P-score
- D
Aménagement de l'espace
- Section du cadastre
- E
- Numéro de cadastre
- 0194/C
- Département du cadastre
- 1ste AFD HALLE
- Plan d'implantation
- oui
- Certificat de sol
- oui
Énergie
- Type de fenêtres
- Aluminium
- Double vitrage
- oui
- Inspection de l'électricité
- Non
- Chauffage
- Pas installé
Techniques
- électricité
- oui, 380V
- Câblage téléphonique
- oui
- Fosse septique
- oui
- Courant triphasé
- oui
Garages / parking
- Garages / parking
- non
- Parking extérieur
- oui
- Parking de l'équipe
- non